Descripción
-
Descripción:
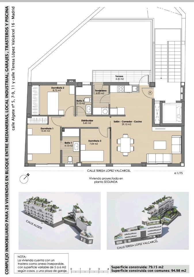
Piso de 95m2, 3 dormitorios y 2 baños. Garaje y trastero, piscina, jardín y gimnasio. Calefacción por aerotermia y suelo refrescante. Buenas calidades.
Mostrar toda la descripción
La propiedad se sitúa en el Distrito de Arganzuela, actualmente una de las zonas más atractivas y populares de Madrid, tanto por estar en el área central de la ciudad como por su oferta cultural y de ocio.
La vivienda está localizada en una zona tranquila y muy bien comunicada, a pocos metros de distancia de líneas de autobuses y de la Estacion de Metro de Legazpi. En pocos minutos, es posible llegar a lugares emblemáticos como el Museo del Prado, Museo Thyssen-Bornemisza, Museo Reina Sofía, Caixa Forum.
Características
- Superficie: 95 m²
- Habitaciones: 3
- Baños: 2
- Exterior : Si
- Ascensor: Si
- Trastero: No
- Terraza: Si
- Portero: Si